
优利特集团医学检验实验室技术解决方案
                   桂林优利特电子(集团)有限公司生产各类体外诊断检验仪器和试剂,应用于全球超过二十万家医疗卫生机构。产品涵盖血细胞分析系统、尿液分析系统、生化分析系统、基层医疗信息化全科诊断系统、即时检验(POCT)诊断产品、综合检验产品、动物医学诊断产品、免疫诊断与基因诊断系统等八大系列。
如今的优利特已发展成集研发、生产、销售、服务一体化的大型健康医疗科技集团,拥有6万多平方米现代化产业园,建立了56个国内直属营销服务中心,20余个海外本土营销服务中心,成为了国产IVD行业中历史最悠久、产品线最齐全、服务体
                - 项目地点:广西桂林
- 项目面积:1800平方米
- 签约时间:2017-12-11
- 项目成果:实验室设计图纸通过验收,正在准备实验室装修施工
服务内容:
                
                
                    立即咨询
                    咨询号码:4008-580-360
                
            现场勘测
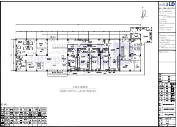
                    2017年12月11日,SLD中检实验室技术与桂林优利特电子(集团)有限公司签订医学检验实验室技术解决方案项目合同,该项目服务内容包括实验室规划设计、项目监理、协助获取《医疗机构执业许可证》证书、协助甲方按ISO 15189要求建立医学检验实验室管理体系。优利特集团医学检验实验室面积约1800平方米,该实验室主要用于临床免疫检验、临床基因扩增检验、临床血液与体液检验等领域。截止目前,实验室施工图纸已确定,项目监理按ISO 15189认证要求对项目施工装修工程进行质量、技术规范监督。

 局部设计图纸展示
                    






